間取りから探す

一級建築士事務所Robinハウスが、様々な家族構成を想定してプランニングしてきた96の間取りプランを、建物形状、広さ、同居人数でお探しいただけます。どの間取りも家事動線や、収納・片付け、炊事・洗濯・食事、くつろぎや集中する時間、休む時間など暮らしのシーンを想定して住み心地のよい間取りをイメージしています。ぜひ、さまざまなキーワードで自分好みの間取りを探してみてください。

  • 平屋
  • 16坪
  • 一人暮らし

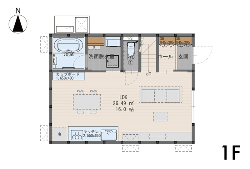
「ワンルーム平屋」という選択。家具で自由を仕切る、大人の一人暮らし。

ワンルームのようなイメージで住まう平屋。
建具を極力排除し、家具で空間を柔軟に仕切られる設計。
収納も充実、一人での暮らしを快適に楽しめるプランです。

プランデータ

1F床面積
52.99㎡
延床面積
52.99㎡
建築面積
52.99㎡

プラン

WEBから資料請求で 間取りプラン集を無料プレゼント

Robinハウスが展開する16ブランドの間取りプラン集を希望者にプレゼントしています。大容量96プランの図面集です。

  • 平屋
  • 16坪
  • 一人暮らし

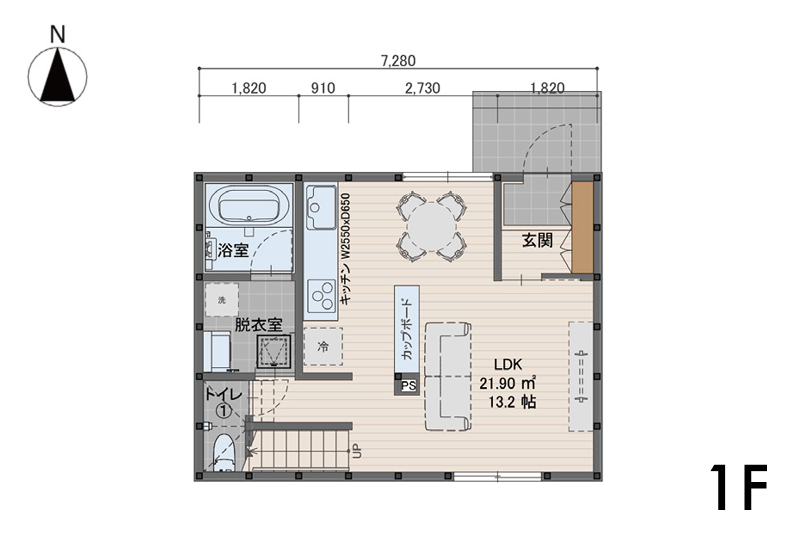
収納充実!平屋で始める、ストレスフリーなソロライフ。

ワンルームのようなイメージで住まう平屋。
建具を極力排除し、家具で空間を柔軟に仕切られる設計。
収納も充実、一人での暮らしを快適に楽しめるプランです。

プランデータ

1F床面積
52.99㎡
延床面積 
52.99㎡
建築面積 
52.99㎡

プラン

WEBから資料請求で 間取りプラン集を無料プレゼント

Robinハウスが展開する16ブランドの間取りプラン集を希望者にプレゼントしています。大容量96プランの図面集です。

  • 平屋
  • 16坪
  • 一人暮らし

ワンルーム感覚で暮らす平屋。広さと収納はそのままに、間取りは「気分」で変える。

ワンルームのようなイメージで住まう平屋。
建具を極力排除し、家具で空間を柔軟に仕切られる設計。
収納も充実、一人での暮らしを快適に楽しめるプランです。

プランデータ

1F床面積
52.99㎡
延床面積 
52.99㎡
建築面積 
52.99㎡

プラン

WEBから資料請求で 間取りプラン集を無料プレゼント

Robinハウスが展開する16ブランドの間取りプラン集を希望者にプレゼントしています。大容量96プランの図面集です。

  • 平屋
  • 16坪
  • 一人暮らし

大人のソロライフへ。すべてが手の届く平屋で、快適さと収納を両立。

ワンルームのようなイメージで住まう平屋。
建具を極力排除し、家具で空間を柔軟に仕切られる設計。
収納も充実、一人での暮らしを快適に楽しめるプランです。

プランデータ

1F床面積
52.99㎡
延床面積 
52.99㎡
建築面積 
52.99㎡

プラン

WEBから資料請求で 間取りプラン集を無料プレゼント

Robinハウスが展開する16ブランドの間取りプラン集を希望者にプレゼントしています。大容量96プランの図面集です。

  • 平屋
  • 16坪
  • 二人暮らし

コンパクト設計に、和のくつろぎをプラス。

コンパクトながら来客対応まで考慮した平屋。
主寝室をきちんと間仕切りしつつ、
LDKの隣に来客も対応できる和室を設ける設計。
限られた空間を最大限有効活用するプランです。

プランデータ

1F床面積
52.99㎡
延床面積 
52.99㎡
建築面積 
52.99㎡

プラン

WEBから資料請求で 間取りプラン集を無料プレゼント

Robinハウスが展開する16ブランドの間取りプラン集を希望者にプレゼントしています。大容量96プランの図面集です。

  • 平屋
  • 16坪
  • 二人暮らし

ひと続きの空間に、ひと工夫のおもてなし。

コンパクトながら来客対応まで考慮した平屋。
主寝室をきちんと間仕切りしつつ、
LDKの隣に来客も対応できる和室を設ける設計。
限られた空間を最大限有効活用するプランです。

プランデータ

1F床面積
52.99㎡
延床面積 
52.99㎡
建築面積 
52.99㎡

プラン

WEBから資料請求で 間取りプラン集を無料プレゼント

Robinハウスが展開する16ブランドの間取りプラン集を希望者にプレゼントしています。大容量96プランの図面集です。

  • 平屋
  • 16坪
  • 二人暮らし

空間を賢く使い、時間を豊かに楽しむ住まい。

コンパクトながら来客対応まで考慮した平屋。
主寝室をきちんと間仕切りしつつ、
LDKの隣に来客も対応できる和室を設ける設計。
限られた空間を最大限有効活用するプランです。

プランデータ

1F床面積
52.99㎡
延床面積 
52.99㎡
建築面積 
52.99㎡

プラン

WEBから資料請求で 間取りプラン集を無料プレゼント

Robinハウスが展開する16ブランドの間取りプラン集を希望者にプレゼントしています。大容量96プランの図面集です。

  • 平屋
  • 16坪
  • 二人暮らし

ひと間の工夫が、毎日に豊かさを届ける。

コンパクトながら来客対応まで考慮した平屋。
主寝室をきちんと間仕切りしつつ、
LDKの隣に来客も対応できる和室を設ける設計。
限られた空間を最大限有効活用するプランです。

プランデータ

1F床面積
52.99㎡
延床面積 
52.99㎡
建築面積 
52.99㎡

プラン

WEBから資料請求で 間取りプラン集を無料プレゼント

Robinハウスが展開する16ブランドの間取りプラン集を希望者にプレゼントしています。大容量96プランの図面集です。

  • 平屋
  • 16坪
  • 三人家族

家族がゆるやかにつながる、心豊かな住まい

コンパクトでありながら、LDKを実現する平屋。
LDKを中心に、回遊動線を重視した間取り設計。

プランデータ

1F床面積
52.99㎡
延床面積 
52.99㎡
建築面積 
52.99㎡

プラン

WEBから資料請求で 間取りプラン集を無料プレゼント

Robinハウスが展開する16ブランドの間取りプラン集を希望者にプレゼントしています。大容量96プランの図面集です。

  • 平屋
  • 16坪
  • 三人家族

三人の暮らしに、ゆとりと心地よさを描く平屋

コンパクトでありながら、LDKを実現する平屋。
LDKを中心に、回遊動線を重視した間取り設計。

プランデータ

1F床面積
52.99㎡
延床面積 
52.99㎡
建築面積 
52.99㎡

プラン

WEBから資料請求で 間取りプラン集を無料プレゼント

Robinハウスが展開する16ブランドの間取りプラン集を希望者にプレゼントしています。大容量96プランの図面集です。

  • 平屋
  • 16坪
  • 三人家族

コンパクトだからこそ、家族の距離がちょうどいい

コンパクトでありながら、LDKを実現する平屋。
LDKを中心に、回遊動線を重視した間取り設計。

プランデータ

1F床面積
52.99㎡
延床面積 
52.99㎡
建築面積 
52.99㎡

プラン

WEBから資料請求で 間取りプラン集を無料プレゼント

Robinハウスが展開する16ブランドの間取りプラン集を希望者にプレゼントしています。大容量96プランの図面集です。

  • 平屋
  • 16坪
  • 三人家族

三人で暮らす、ちょうどいい豊かさの平屋

コンパクトでありながら、LDKを実現する平屋。
LDKを中心に、回遊動線を重視した間取り設計。

プランデータ

1F床面積
52.99㎡
延床面積 
52.99㎡
建築面積 
52.99㎡

プラン

WEBから資料請求で 間取りプラン集を無料プレゼント

Robinハウスが展開する16ブランドの間取りプラン集を希望者にプレゼントしています。大容量96プランの図面集です。

  • 平屋
  • 18坪
  • 二人暮らし

仕切らない空間に、ふたりの時間がゆるやかに流れる

まるでホテルスイートのような空間を実現した平屋。
寝室とLDKの間仕切りを設けず、 空間にゆとりをもたせる設計。
水回りは集約し、くつろぎと利便性を両立したプランです。

プランデータ

1F床面積
59.62㎡
延床面積 
59.62㎡
建築面積 
59.62㎡

プラン

WEBから資料請求で 間取りプラン集を無料プレゼント

Robinハウスが展開する16ブランドの間取りプラン集を希望者にプレゼントしています。大容量96プランの図面集です。

  • 平屋
  • 18坪
  • 二人暮らし

上質なシンプルさが、夫婦の時間を豊かにする

まるでホテルスイートのような空間を実現した平屋。
寝室とLDKの間仕切りを設けず、 空間にゆとりをもたせる設計。
水回りは集約し、くつろぎと利便性を両立したプランです。

プランデータ

1F床面積
59.62㎡
延床面積 
59.62㎡
建築面積 
59.62㎡

プラン

WEBから資料請求で 間取りプラン集を無料プレゼント

Robinハウスが展開する16ブランドの間取りプラン集を希望者にプレゼントしています。大容量96プランの図面集です。

  • 平屋
  • 18坪
  • 二人暮らし

動線も空気もスムーズに。快適を極めた大人の住まい

まるでホテルスイートのような空間を実現した平屋。
寝室とLDKの間仕切りを設けず、 空間にゆとりをもたせる設計。
水回りは集約し、くつろぎと利便性を両立したプランです。

プランデータ

1F床面積
59.62㎡
延床面積 
59.62㎡
建築面積 
59.62㎡

プラン

WEBから資料請求で 間取りプラン集を無料プレゼント

Robinハウスが展開する16ブランドの間取りプラン集を希望者にプレゼントしています。大容量96プランの図面集です。

  • 平屋
  • 18坪
  • 二人暮らし

コンパクトなのに、広がる心地よさ

まるでホテルスイートのような空間を実現した平屋。
寝室とLDKの間仕切りを設けず、 空間にゆとりをもたせる設計。
水回りは集約し、くつろぎと利便性を両立したプランです。

プランデータ

1F床面積
59.62㎡
延床面積 
59.62㎡
建築面積 
59.62㎡

プラン

WEBから資料請求で 間取りプラン集を無料プレゼント

Robinハウスが展開する16ブランドの間取りプラン集を希望者にプレゼントしています。大容量96プランの図面集です。

  • 平屋
  • 18坪
  • 三人家族

コンパクトに暮らして、ゆとりを感じる毎日へ

コンパクトながら家族三人が快適に暮らせる平屋。
それぞれの空間を確保しつつ、 広いLDKと水回りをまとめた設計。
くつろぎと利便性を両立したプランです。

プランデータ

1F床面積
59.62㎡
延床面積 
59.62㎡
建築面積 
59.62㎡

プラン

WEBから資料請求で 間取りプラン集を無料プレゼント

Robinハウスが展開する16ブランドの間取りプラン集を希望者にプレゼントしています。大容量96プランの図面集です。

  • 平屋
  • 18坪
  • 三人家族

家族が集うLDKに、笑顔とぬくもりがめぐる

コンパクトながら家族三人が快適に暮らせる平屋。
それぞれの空間を確保しつつ、 広いLDKと水回りをまとめた設計。
くつろぎと利便性を両立したプランです。

プランデータ

1F床面積
59.62㎡
延床面積 
59.62㎡
建築面積 
59.62㎡

プラン

WEBから資料請求で 間取りプラン集を無料プレゼント

Robinハウスが展開する16ブランドの間取りプラン集を希望者にプレゼントしています。大容量96プランの図面集です。

  • 平屋
  • 18坪
  • 三人家族

コンパクトなのに、豊かさがあふれる平屋のかたち

コンパクトながら家族三人が快適に暮らせる平屋。
それぞれの空間を確保しつつ、 広いLDKと水回りをまとめた設計。
くつろぎと利便性を両立したプランです。

プランデータ

1F床面積
59.62㎡
延床面積 
59.62㎡
建築面積 
59.62㎡

プラン

WEBから資料請求で 間取りプラン集を無料プレゼント

Robinハウスが展開する16ブランドの間取りプラン集を希望者にプレゼントしています。大容量96プランの図面集です。

  • 平屋
  • 18坪
  • 三人家族

三人にちょうどいい、豊かで心地よい平屋

コンパクトながら家族三人が快適に暮らせる平屋。
それぞれの空間を確保しつつ、 広いLDKと水回りをまとめた設計。
くつろぎと利便性を両立したプランです。

プランデータ

1F床面積
59.62㎡
延床面積 
59.62㎡
建築面積 
59.62㎡

プラン

WEBから資料請求で 間取りプラン集を無料プレゼント

Robinハウスが展開する16ブランドの間取りプラン集を希望者にプレゼントしています。大容量96プランの図面集です。

  • 平屋
  • 18坪
  • 三人家族

忙しい毎日も、心豊かに過ごせる平屋

共働きの子育て世帯にぴったりの平屋。
それぞれの空間を確保しつつ、 家事動線を考えた設計。
特に収納と物干しスペースを兼ねたランドリールームは共働きの強い味方。

プランデータ

1F床面積
59.62㎡
延床面積 
59.62㎡
建築面積 
59.62㎡

プラン

WEBから資料請求で 間取りプラン集を無料プレゼント

Robinハウスが展開する16ブランドの間取りプラン集を希望者にプレゼントしています。大容量96プランの図面集です。

  • 平屋
  • 18坪
  • 三人家族

家事も子育てもスムーズに。三人家族の快適な暮らし

共働きの子育て世帯にぴったりの平屋。
それぞれの空間を確保しつつ、 家事動線を考えた設計。
特に収納と物干しスペースを兼ねたランドリールームは共働きの強い味方。

プランデータ

1F床面積
59.62㎡
延床面積 
59.62㎡
建築面積 
59.62㎡

プラン

WEBから資料請求で 間取りプラン集を無料プレゼント

Robinハウスが展開する16ブランドの間取りプラン集を希望者にプレゼントしています。大容量96プランの図面集です。

  • 平屋
  • 18坪
  • 三人家族

効率よく動ける動線で、家族の時間をもっと豊かに

共働きの子育て世帯にぴったりの平屋。
それぞれの空間を確保しつつ、 家事動線を考えた設計。
特に収納と物干しスペースを兼ねたランドリールームは共働きの強い味方。

プランデータ

1F床面積
59.62㎡
延床面積 
59.62㎡
建築面積 
59.62㎡

プラン

WEBから資料請求で 間取りプラン集を無料プレゼント

Robinハウスが展開する16ブランドの間取りプラン集を希望者にプレゼントしています。大容量96プランの図面集です。

  • 平屋
  • 18坪
  • 三人家族

家事をラクに、暮らしを豊かに。家族想いの間取り

共働きの子育て世帯にぴったりの平屋。
それぞれの空間を確保しつつ、 家事動線を考えた設計。
特に収納と物干しスペースを兼ねたランドリールームは共働きの強い味方。

プランデータ

1F床面積
59.62㎡
延床面積 
59.62㎡
建築面積 
59.62㎡

プラン

WEBから資料請求で 間取りプラン集を無料プレゼント

Robinハウスが展開する16ブランドの間取りプラン集を希望者にプレゼントしています。大容量96プランの図面集です。

  • 平屋
  • 20坪
  • 二人暮らし

ふたりで暮らし、誰かを迎える。豊かさを分かち合う平屋

頻繁な来客を想定した二人暮らしの平屋。
二人まで宿泊が可能な和室を設け、
家族と宿泊者の動線を分けることで互いに快適な設計となっている。

プランデータ

1F床面積
66.24㎡
延床面積 
66.24㎡
建築面積 
66.24㎡

プラン

WEBから資料請求で 間取りプラン集を無料プレゼント

Robinハウスが展開する16ブランドの間取りプラン集を希望者にプレゼントしています。大容量96プランの図面集です。

  • 平屋
  • 20坪
  • 二人暮らし

穏やかに暮らし、心ゆたかにもてなす

頻繁な来客を想定した二人暮らしの平屋。
二人まで宿泊が可能な和室を設け、
家族と宿泊者の動線を分けることで互いに快適な設計となっている。

プランデータ

1F床面積
66.24㎡
延床面積 
66.24㎡
建築面積 
66.24㎡

プラン

WEBから資料請求で 間取りプラン集を無料プレゼント

Robinハウスが展開する16ブランドの間取りプラン集を希望者にプレゼントしています。大容量96プランの図面集です。

  • 平屋
  • 20坪
  • 二人暮らし

ふたりの時間も、訪れる人の時間も、心地よく

頻繁な来客を想定した二人暮らしの平屋。
二人まで宿泊が可能な和室を設け、
家族と宿泊者の動線を分けることで互いに快適な設計となっている。

プランデータ

1F床面積
66.24㎡
延床面積 
66.24㎡
建築面積 
66.24㎡

プラン

WEBから資料請求で 間取りプラン集を無料プレゼント

Robinハウスが展開する16ブランドの間取りプラン集を希望者にプレゼントしています。大容量96プランの図面集です。

  • 平屋
  • 20坪
  • 二人暮らし

分ける動線が、つながる心を育む平屋

頻繁な来客を想定した二人暮らしの平屋。
二人まで宿泊が可能な和室を設け、
家族と宿泊者の動線を分けることで互いに快適な設計となっている。

プランデータ

1F床面積
66.24㎡
延床面積 
66.24㎡
建築面積 
66.24㎡

プラン

WEBから資料請求で 間取りプラン集を無料プレゼント

Robinハウスが展開する16ブランドの間取りプラン集を希望者にプレゼントしています。大容量96プランの図面集です。

  • 平屋
  • 20坪
  • 三人家族

家事がはかどるたび、家族の笑顔がふえる平屋

家事効率を重視した平屋。
中央に設けたファミリークロークを起点にした動線設計で、
家事効率と家族の快適性を両立したプランです。

プランデータ

1F床面積
66.24㎡
延床面積 
66.24㎡
建築面積 
66.24㎡

プラン

WEBから資料請求で 間取りプラン集を無料プレゼント

Robinハウスが展開する16ブランドの間取りプラン集を希望者にプレゼントしています。大容量96プランの図面集です。

  • 平屋
  • 20坪
  • 三人家族

ファミリークロークを中心に、家族がつながる住まい

家事効率を重視した平屋。
中央に設けたファミリークロークを起点にした動線設計で、
家事効率と家族の快適性を両立したプランです。

プランデータ

1F床面積
66.24㎡
延床面積 
66.24㎡
建築面積 
66.24㎡

プラン

WEBから資料請求で 間取りプラン集を無料プレゼント

Robinハウスが展開する16ブランドの間取りプラン集を希望者にプレゼントしています。大容量96プランの図面集です。

  • 平屋
  • 20坪
  • 三人家族

家事効率と心地よさが調和する、三人の平屋

家事効率を重視した平屋。
中央に設けたファミリークロークを起点にした動線設計で、
家事効率と家族の快適性を両立したプランです。

プランデータ

1F床面積
66.24㎡
延床面積 
66.24㎡
建築面積 
66.24㎡

プラン

WEBから資料請求で 間取りプラン集を無料プレゼント

Robinハウスが展開する16ブランドの間取りプラン集を希望者にプレゼントしています。大容量96プランの図面集です。

  • 平屋
  • 20坪
  • 三人家族

コンパクトな動線に、豊かな暮らしの知恵を

家事効率を重視した平屋。
中央に設けたファミリークロークを起点にした動線設計で、
家事効率と家族の快適性を両立したプランです。

プランデータ

1F床面積
66.24㎡
延床面積 
66.24㎡
建築面積 
66.24㎡

プラン

WEBから資料請求で 間取りプラン集を無料プレゼント

Robinハウスが展開する16ブランドの間取りプラン集を希望者にプレゼントしています。大容量96プランの図面集です。

  • 平屋
  • 20坪
  • 一人暮らし

ひとりの時間も、家族の時間も、どちらも豊かに

二世代での過ごし方を想定しつつ、一人で快適に暮らせる平屋。
例えば、普段はおばあちゃんの一人暮らし、
休日は孫たちが泊まりに来て楽しい時間を過ごす。
そんな日々を楽しめるプランです。

プランデータ

1F床面積
66.24㎡
延床面積 
66.24㎡
建築面積 
66.24㎡

プラン

WEBから資料請求で 間取りプラン集を無料プレゼント

Robinハウスが展開する16ブランドの間取りプラン集を希望者にプレゼントしています。大容量96プランの図面集です。

  • 平屋
  • 20坪
  • 一人暮らし

暮らしを分けずに、心をつなぐ二世代の住まい

二世代での過ごし方を想定しつつ、一人で快適に暮らせる平屋。
例えば、普段はおばあちゃんの一人暮らし、
休日は孫たちが泊まりに来て楽しい時間を過ごす。
そんな日々を楽しめるプランです。

プランデータ

1F床面積
66.24㎡
延床面積 
66.24㎡
建築面積 
66.24㎡

プラン

WEBから資料請求で 間取りプラン集を無料プレゼント

Robinハウスが展開する16ブランドの間取りプラン集を希望者にプレゼントしています。大容量96プランの図面集です。

  • 平屋
  • 20坪
  • 一人暮らし

やさしい静けさの中に、家族の気配がある

二世代での過ごし方を想定しつつ、一人で快適に暮らせる平屋。
例えば、普段はおばあちゃんの一人暮らし、
休日は孫たちが泊まりに来て楽しい時間を過ごす。
そんな日々を楽しめるプランです。

プランデータ

1F床面積
66.24㎡
延床面積 
66.24㎡
建築面積 
66.24㎡

プラン

WEBから資料請求で 間取りプラン集を無料プレゼント

Robinハウスが展開する16ブランドの間取りプラン集を希望者にプレゼントしています。大容量96プランの図面集です。

  • 平屋
  • 20坪
  • 一人暮らし

小さな平屋に、世代を超えた豊かさを

二世代での過ごし方を想定しつつ、一人で快適に暮らせる平屋。
例えば、普段はおばあちゃんの一人暮らし、
休日は孫たちが泊まりに来て楽しい時間を過ごす。
そんな日々を楽しめるプランです。

プランデータ

1F床面積
66.24㎡
延床面積 
66.24㎡
建築面積 
66.24㎡

プラン

WEBから資料請求で 間取りプラン集を無料プレゼント

Robinハウスが展開する16ブランドの間取りプラン集を希望者にプレゼントしています。大容量96プランの図面集です。

  • 平屋
  • 22坪
  • 四人家族

4人の毎日が、ひとつのリビングに集う家

コンパクトでありながら、3LDKを実現する平屋。
家族それぞれのプライバシーに配慮しつつ、
リビングも十分な広さを設けた設計で、
家族みんなが快適に暮らせるプランです。

プランデータ

1F床面積
72.87㎡
延床面積 
72.87㎡
建築面積 
72.87㎡

プラン

WEBから資料請求で 間取りプラン集を無料プレゼント

Robinハウスが展開する16ブランドの間取りプラン集を希望者にプレゼントしています。大容量96プランの図面集です。

  • 平屋
  • 22坪
  • 四人家族

コンパクトなのに、家族みんながのびのび暮らせる

コンパクトでありながら、3LDKを実現する平屋。
家族それぞれのプライバシーに配慮しつつ、
リビングも十分な広さを設けた設計で、
家族みんなが快適に暮らせるプランです。

プランデータ

1F床面積
72.87㎡
延床面積 
72.87㎡
建築面積 
72.87㎡

プラン

WEBから資料請求で 間取りプラン集を無料プレゼント

Robinハウスが展開する16ブランドの間取りプラン集を希望者にプレゼントしています。大容量96プランの図面集です。

  • 平屋
  • 22坪
  • 四人家族

暮らしやすさと心のやすらぎを両立する平屋

コンパクトでありながら、3LDKを実現する平屋。
家族それぞれのプライバシーに配慮しつつ、
リビングも十分な広さを設けた設計で、
家族みんなが快適に暮らせるプランです。

プランデータ

1F床面積
72.87㎡
延床面積 
72.87㎡
建築面積 
72.87㎡

プラン

WEBから資料請求で 間取りプラン集を無料プレゼント

Robinハウスが展開する16ブランドの間取りプラン集を希望者にプレゼントしています。大容量96プランの図面集です。

  • 平屋
  • 22坪
  • 四人家族

コンパクト設計で叶える、家族のゆとりある暮らし

コンパクトでありながら、3LDKを実現する平屋。
家族それぞれのプライバシーに配慮しつつ、
リビングも十分な広さを設けた設計で、
家族みんなが快適に暮らせるプランです。

プランデータ

1F床面積
72.87㎡
延床面積 
72.87㎡
建築面積 
72.87㎡

プラン

WEBから資料請求で 間取りプラン集を無料プレゼント

Robinハウスが展開する16ブランドの間取りプラン集を希望者にプレゼントしています。大容量96プランの図面集です。

  • 平屋
  • 22坪
  • 四人家族

コンパクトでも、家族みんなが快適に過ごせる平屋

コンパクトでありながら、3LDKを実現する平屋。
水回りを中央に設けることで、個室とLDKのゾーニングを明確に区別。
家事効率と家族の快適性を両立したプランです。

プランデータ

1F床面積
72.87㎡
延床面積 
72.87㎡
建築面積 
72.87㎡

プラン

WEBから資料請求で 間取りプラン集を無料プレゼント

Robinハウスが展開する16ブランドの間取りプラン集を希望者にプレゼントしています。大容量96プランの図面集です。

  • 平屋
  • 22坪
  • 四人家族

家事効率を高め、家族の時間をゆたかに

コンパクトでありながら、3LDKを実現する平屋。
水回りを中央に設けることで、個室とLDKのゾーニングを明確に区別。
家事効率と家族の快適性を両立したプランです。

プランデータ

1F床面積
72.87㎡
延床面積 
72.87㎡
建築面積 
72.87㎡

プラン

WEBから資料請求で 間取りプラン集を無料プレゼント

Robinハウスが展開する16ブランドの間取りプラン集を希望者にプレゼントしています。大容量96プランの図面集です。

  • 平屋
  • 22坪
  • 四人家族

個室とLDKの心地よい距離感をデザイン

コンパクトでありながら、3LDKを実現する平屋。
水回りを中央に設けることで、個室とLDKのゾーニングを明確に区別。
家事効率と家族の快適性を両立したプランです。

プランデータ

1F床面積
72.87㎡
延床面積 
72.87㎡
建築面積 
72.87㎡

プラン

WEBから資料請求で 間取りプラン集を無料プレゼント

Robinハウスが展開する16ブランドの間取りプラン集を希望者にプレゼントしています。大容量96プランの図面集です。

  • 平屋
  • 22坪
  • 四人家族

個室の安心感と、LDKの開放感を両立

コンパクトでありながら、3LDKを実現する平屋。
水回りを中央に設けることで、個室とLDKのゾーニングを明確に区別。
家事効率と家族の快適性を両立したプランです。

プランデータ

1F床面積
72.87㎡
延床面積 
72.87㎡
建築面積 
72.87㎡

プラン

WEBから資料請求で 間取りプラン集を無料プレゼント

Robinハウスが展開する16ブランドの間取りプラン集を希望者にプレゼントしています。大容量96プランの図面集です。

  • 平屋
  • 22坪
  • 三人家族

コンパクトでも、家族の時間はゆったり広がる

コンパクトでありながら、親子がのびのび暮らせる平屋。
特徴であるリビング隣接の畳コーナーは、
来客や小さなお子さんの遊び場、
家事スペースなど様々な使い方が楽しめます。

プランデータ

1F床面積
72.87㎡
延床面積 
72.87㎡
建築面積 
72.87㎡

プラン

WEBから資料請求で 間取りプラン集を無料プレゼント

Robinハウスが展開する16ブランドの間取りプラン集を希望者にプレゼントしています。大容量96プランの図面集です。

  • 平屋
  • 22坪
  • 三人家族

来客も子どもも、みんなが快適に過ごせる空間

コンパクトでありながら、親子がのびのび暮らせる平屋。
特徴であるリビング隣接の畳コーナーは、
来客や小さなお子さんの遊び場、
家事スペースなど様々な使い方が楽しめます。

プランデータ

1F床面積
72.87㎡
延床面積 
72.87㎡
建築面積 
72.87㎡

プラン

WEBから資料請求で 間取りプラン集を無料プレゼント

Robinハウスが展開する16ブランドの間取りプラン集を希望者にプレゼントしています。大容量96プランの図面集です。

  • 平屋
  • 22坪
  • 三人家族

コンパクトな平屋に、家族の時間を楽しむ工夫を

コンパクトでありながら、親子がのびのび暮らせる平屋。
特徴であるリビング隣接の畳コーナーは、
来客や小さなお子さんの遊び場、
家事スペースなど様々な使い方が楽しめます。

プランデータ

1F床面積
72.87㎡
延床面積 
72.87㎡
建築面積 
72.87㎡

プラン

WEBから資料請求で 間取りプラン集を無料プレゼント

Robinハウスが展開する16ブランドの間取りプラン集を希望者にプレゼントしています。大容量96プランの図面集です。

  • 平屋
  • 22坪
  • 三人家族

親子で過ごす毎日が、自然と心豊かになる家

コンパクトでありながら、親子がのびのび暮らせる平屋。
特徴であるリビング隣接の畳コーナーは、
来客や小さなお子さんの遊び場、
家事スペースなど様々な使い方が楽しめます。

プランデータ

1F床面積
72.87㎡
延床面積 
72.87㎡
建築面積 
72.87㎡

プラン

WEBから資料請求で 間取りプラン集を無料プレゼント

Robinハウスが展開する16ブランドの間取りプラン集を希望者にプレゼントしています。大容量96プランの図面集です。

  • 2階建て
  • 24坪
  • 四人家族

家族みんながのびのび過ごせる、広々LDKの二階屋

LDKを広々と使える効率的な空間設計に加え、
2階には多用途に対応するファミリースペースを設けました。

プランデータ

1F床面積
39.74㎡
2F床面積
39.74㎡
延床面積 
39.74㎡
建築面積 
79.48㎡

プラン

WEBから資料請求で 間取りプラン集を無料プレゼント

Robinハウスが展開する16ブランドの間取りプラン集を希望者にプレゼントしています。大容量96プランの図面集です。

  • 2階建て
  • 24坪
  • 四人家族

LDKとファミリースペースで、家族の時間を思いきり楽しむ

LDKを広々と使える効率的な空間設計に加え、
2階には多用途に対応するファミリースペースを設けました。

プランデータ

1F床面積
39.74㎡
2F床面積
39.74㎡
延床面積 
39.74㎡
建築面積 
79.48㎡

プラン

WEBから資料請求で 間取りプラン集を無料プレゼント

Robinハウスが展開する16ブランドの間取りプラン集を希望者にプレゼントしています。大容量96プランの図面集です。

  • 2階建て
  • 24坪
  • 四人家族

暮らしやすさと自由さを両立した4人家族の住まい

LDKを広々と使える効率的な空間設計に加え、
2階には多用途に対応するファミリースペースを設けました。

プランデータ

1F床面積
39.74㎡
2F床面積
39.74㎡
延床面積 
39.74㎡
建築面積 
79.48㎡

プラン

WEBから資料請求で 間取りプラン集を無料プレゼント

Robinハウスが展開する16ブランドの間取りプラン集を希望者にプレゼントしています。大容量96プランの図面集です。

  • 2階建て
  • 24坪
  • 四人家族

LDK中心の空間設計で、家族が心地よくつながる

LDKを広々と使える効率的な空間設計に加え、
2階には多用途に対応するファミリースペースを設けました。

プランデータ

1F床面積
39.74㎡
2F床面積
39.74㎡
延床面積 
39.74㎡
建築面積 
79.48㎡

プラン

WEBから資料請求で 間取りプラン集を無料プレゼント

Robinハウスが展開する16ブランドの間取りプラン集を希望者にプレゼントしています。大容量96プランの図面集です。

  • 2階建て
  • 24坪
  • 四人家族

効率的で広々、家族みんなが心地よく暮らせる家

LDKを広々と使える効率的な空間設計に加え、
2階には多用途に対応するファミリースペースを設けました。

プランデータ

1F床面積
39.74㎡
2F床面積
39.74㎡
延床面積 
39.74㎡
建築面積 
79.48㎡

プラン

WEBから資料請求で 間取りプラン集を無料プレゼント

Robinハウスが展開する16ブランドの間取りプラン集を希望者にプレゼントしています。大容量96プランの図面集です。

  • 2階建て
  • 24坪
  • 四人家族

多用途スペースで、家族のライフスタイルが広がる

LDKを広々と使える効率的な空間設計に加え、
2階には多用途に対応するファミリースペースを設けました。

プランデータ

1F床面積
39.74㎡
2F床面積
39.74㎡
延床面積 
39.74㎡
建築面積 
79.48㎡

プラン

WEBから資料請求で 間取りプラン集を無料プレゼント

Robinハウスが展開する16ブランドの間取りプラン集を希望者にプレゼントしています。大容量96プランの図面集です。

  • 2階建て
  • 24坪
  • 四人家族

四人それぞれの時間も、家族の時間も大切に

LDKを広々と使える効率的な空間設計に加え、
2階には多用途に対応するファミリースペースを設けました。

プランデータ

1F床面積
39.74㎡
2F床面積
39.74㎡
延床面積 
39.74㎡
建築面積 
79.48㎡

プラン

WEBから資料請求で 間取りプラン集を無料プレゼント

Robinハウスが展開する16ブランドの間取りプラン集を希望者にプレゼントしています。大容量96プランの図面集です。

  • 2階建て
  • 24坪
  • 四人家族

暮らしやすさと自由さ、両方をかなえる住まい

LDKを広々と使える効率的な空間設計に加え、
2階には多用途に対応するファミリースペースを設けました。

プランデータ

1F床面積
39.74㎡
2F床面積
39.74㎡
延床面積 
39.74㎡
建築面積 
79.48㎡

プラン

WEBから資料請求で 間取りプラン集を無料プレゼント

Robinハウスが展開する16ブランドの間取りプラン集を希望者にプレゼントしています。大容量96プランの図面集です。

  • 2階建て
  • 24坪
  • 四人家族

壁付きキッチンで、広々と快適なLDKを実現

壁付きキッチンでDKスペースを最大限に活用し、
玄関を含むLDK一体型で開放的な雰囲気を演出。
広々とした快適な住まいの間取りです。

プランデータ

1F床面積
39.74㎡
2F床面積
39.74㎡
延床面積 
39.74㎡
建築面積 
79.48㎡

プラン

WEBから資料請求で 間取りプラン集を無料プレゼント

Robinハウスが展開する16ブランドの間取りプラン集を希望者にプレゼントしています。大容量96プランの図面集です。

  • 2階建て
  • 24坪
  • 四人家族

玄関からLDKまで、家族が自然とつながる開放感

壁付きキッチンでDKスペースを最大限に活用し、
玄関を含むLDK一体型で開放的な雰囲気を演出。
広々とした快適な住まいの間取りです。

プランデータ

1F床面積
39.74㎡
2F床面積
39.74㎡
延床面積 
39.74㎡
建築面積 
79.48㎡

プラン

WEBから資料請求で 間取りプラン集を無料プレゼント

Robinハウスが展開する16ブランドの間取りプラン集を希望者にプレゼントしています。大容量96プランの図面集です。

  • 2階建て
  • 24坪
  • 四人家族

玄関からリビングまで、心地よく広がる二階屋

壁付きキッチンでDKスペースを最大限に活用し、
玄関を含むLDK一体型で開放的な雰囲気を演出。
広々とした快適な住まいの間取りです。

プランデータ

1F床面積
39.74㎡
2F床面積
39.74㎡
延床面積 
39.74㎡
建築面積 
79.48㎡

プラン

WEBから資料請求で 間取りプラン集を無料プレゼント

Robinハウスが展開する16ブランドの間取りプラン集を希望者にプレゼントしています。大容量96プランの図面集です。

  • 2階建て
  • 24坪
  • 四人家族

四人家族がのびのび過ごせる、広々LDK設計

壁付きキッチンでDKスペースを最大限に活用し、
玄関を含むLDK一体型で開放的な雰囲気を演出。
広々とした快適な住まいの間取りです。

プランデータ

1F床面積
39.74㎡
2F床面積
39.74㎡
延床面積 
39.74㎡
建築面積 
79.48㎡

プラン

WEBから資料請求で 間取りプラン集を無料プレゼント

Robinハウスが展開する16ブランドの間取りプラン集を希望者にプレゼントしています。大容量96プランの図面集です。

  • 2階建て
  • 24坪
  • 四人家族

家族みんながのびのび暮らせる、快適な住まい

LDKを広く取り、スペースを有効に活用した設計にし、
階にはさまざまな用途で利用可能なファミリースペースを備えています。

プランデータ

1F床面積
46.37㎡
2F床面積
46.37㎡
延床面積 
46.37㎡
建築面積 
92.74㎡

プラン

WEBから資料請求で 間取りプラン集を無料プレゼント

Robinハウスが展開する16ブランドの間取りプラン集を希望者にプレゼントしています。大容量96プランの図面集です。

  • 2階建て
  • 24坪
  • 四人家族

家族の暮らしを考えた、効率的で心地よい間取り

LDKを広く取り、スペースを有効に活用した設計にし、
階にはさまざまな用途で利用可能なファミリースペースを備えています。

プランデータ

1F床面積
46.37㎡
2F床面積
46.37㎡
延床面積 
46.37㎡
建築面積 
92.74㎡

プラン

WEBから資料請求で 間取りプラン集を無料プレゼント

Robinハウスが展開する16ブランドの間取りプラン集を希望者にプレゼントしています。大容量96プランの図面集です。

  • 2階建て
  • 24坪
  • 四人家族

LDKとファミリースペースで、家族の自由をデザイン

LDKを広く取り、スペースを有効に活用した設計にし、
階にはさまざまな用途で利用可能なファミリースペースを備えています。

プランデータ

1F床面積
46.37㎡
2F床面積
46.37㎡
延床面積 
46.37㎡
建築面積 
92.74㎡

プラン

WEBから資料請求で 間取りプラン集を無料プレゼント

Robinハウスが展開する16ブランドの間取りプラン集を希望者にプレゼントしています。大容量96プランの図面集です。

  • 2階建て
  • 24坪
  • 四人家族

家族それぞれの時間も、みんなの時間も快適に

LDKを広く取り、スペースを有効に活用した設計にし、
階にはさまざまな用途で利用可能なファミリースペースを備えています。

プランデータ

1F床面積
46.37㎡
2F床面積
46.37㎡
延床面積 
46.37㎡
建築面積 
92.74㎡

プラン

WEBから資料請求で 間取りプラン集を無料プレゼント

Robinハウスが展開する16ブランドの間取りプラン集を希望者にプレゼントしています。大容量96プランの図面集です。

  • 2階建て
  • 24坪
  • 四人家族

収納力抜群で、家族の暮らしをすっきり快適に

壁一面の充実したDK収納、
荷物が多くても収納できる大容量WIC付き主寝室、
作業スペース完備の寝室を備えた、機能的な間取りです。

プランデータ

1F床面積
39.74㎡
2F床面積
39.74㎡
延床面積 
39.74㎡
建築面積 
79.48㎡

プラン

WEBから資料請求で 間取りプラン集を無料プレゼント

Robinハウスが展開する16ブランドの間取りプラン集を希望者にプレゼントしています。大容量96プランの図面集です。

  • 2階建て
  • 24坪
  • 四人家族

壁一面のDK収納が、毎日の家事をラクに

壁一面の充実したDK収納、
荷物が多くても収納できる大容量WIC付き主寝室、
作業スペース完備の寝室を備えた、機能的な間取りです。

プランデータ

1F床面積
39.74㎡
2F床面積
39.74㎡
延床面積 
39.74㎡
建築面積 
79.48㎡

プラン

WEBから資料請求で 間取りプラン集を無料プレゼント

Robinハウスが展開する16ブランドの間取りプラン集を希望者にプレゼントしています。大容量96プランの図面集です。

  • 2階建て
  • 24坪
  • 四人家族

収納上手が叶える、家族の心地よい暮らし

壁一面の充実したDK収納、
荷物が多くても収納できる大容量WIC付き主寝室、
作業スペース完備の寝室を備えた、機能的な間取りです。

プランデータ

1F床面積
39.74㎡
2F床面積
39.74㎡
延床面積 
39.74㎡
建築面積 
79.48㎡

プラン

WEBから資料請求で 間取りプラン集を無料プレゼント

Robinハウスが展開する16ブランドの間取りプラン集を希望者にプレゼントしています。大容量96プランの図面集です。

  • 2階建て
  • 24坪
  • 四人家族

壁一面収納が、暮らしをもっと便利にする

壁一面の充実したDK収納、
荷物が多くても収納できる大容量WIC付き主寝室、
作業スペース完備の寝室を備えた、機能的な間取りです。

プランデータ

1F床面積
39.74㎡
2F床面積
39.74㎡
延床面積 
39.74㎡
建築面積 
79.48㎡

プラン

WEBから資料請求で 間取りプラン集を無料プレゼント

Robinハウスが展開する16ブランドの間取りプラン集を希望者にプレゼントしています。大容量96プランの図面集です。

  • 2階建て
  • 24坪
  • 四人家族

隠し収納と大容量WICで、家族の暮らしをすっきり整理

壁付キッチンで広げたDK、
隠し収納のパントリー、大容量WICの主寝室、
ワークスペース付き寝室を持つ、
収納と機能性を重視した間取りです。

プランデータ

1F床面積
39.74㎡
2F床面積
39.74㎡
延床面積 
39.74㎡
建築面積 
79.48㎡

プラン

WEBから資料請求で 間取りプラン集を無料プレゼント

Robinハウスが展開する16ブランドの間取りプラン集を希望者にプレゼントしています。大容量96プランの図面集です。

  • 2階建て
  • 24坪
  • 四人家族

収納と機能性を両立した、四人家族にぴったりの間取り

壁付キッチンで広げたDK、
隠し収納のパントリー、大容量WICの主寝室、
ワークスペース付き寝室を持つ、
収納と機能性を重視した間取りです。

プランデータ

1F床面積
39.74㎡
2F床面積
39.74㎡
延床面積 
39.74㎡
建築面積 
79.48㎡

プラン

WEBから資料請求で 間取りプラン集を無料プレゼント

Robinハウスが展開する16ブランドの間取りプラン集を希望者にプレゼントしています。大容量96プランの図面集です。

  • 2階建て
  • 24坪
  • 四人家族

収納上手な間取りで、家族の暮らしにゆとりを

壁付キッチンで広げたDK、
隠し収納のパントリー、大容量WICの主寝室、
ワークスペース付き寝室を持つ、
収納と機能性を重視した間取りです。

プランデータ

1F床面積
39.74㎡
2F床面積
39.74㎡
延床面積 
39.74㎡
建築面積 
79.48㎡

プラン

WEBから資料請求で 間取りプラン集を無料プレゼント

Robinハウスが展開する16ブランドの間取りプラン集を希望者にプレゼントしています。大容量96プランの図面集です。

  • 2階建て
  • 24坪
  • 四人家族

広々DKと機能的収納で、家族みんなが快適に過ごせる

壁付キッチンで広げたDK、
隠し収納のパントリー、大容量WICの主寝室、
ワークスペース付き寝室を持つ、
収納と機能性を重視した間取りです。

プランデータ

1F床面積
39.74㎡
2F床面積
39.74㎡
延床面積 
39.74㎡
建築面積 
79.48㎡

プラン

WEBから資料請求で 間取りプラン集を無料プレゼント

Robinハウスが展開する16ブランドの間取りプラン集を希望者にプレゼントしています。大容量96プランの図面集です。

  • 2階建て
  • 28坪
  • 四人家族

程よい距離感のDKで、家族の時間をゆったり楽しむ

作業スペースを備えたリビングと、
程よい距離で分けられつつも一体感を保ったDKの間取り、
そしてスムーズな動線を考慮した集中型の水回りスペースを配置しています。

プランデータ

1F床面積
46.37㎡
2F床面積
46.37㎡
延床面積 
46.37㎡
建築面積 
92.74㎡

プラン

WEBから資料請求で 間取りプラン集を無料プレゼント

Robinハウスが展開する16ブランドの間取りプラン集を希望者にプレゼントしています。大容量96プランの図面集です。

  • 2階建て
  • 28坪
  • 四人家族

プライベートも共有も、バランスよく暮らせる間取り

作業スペースを備えたリビングと、
程よい距離で分けられつつも一体感を保ったDKの間取り、
そしてスムーズな動線を考慮した集中型の水回りスペースを配置しています。

プランデータ

1F床面積
46.37㎡
2F床面積
46.37㎡
延床面積 
46.37㎡
建築面積 
92.74㎡

プラン

WEBから資料請求で 間取りプラン集を無料プレゼント

Robinハウスが展開する16ブランドの間取りプラン集を希望者にプレゼントしています。大容量96プランの図面集です。

  • 2階建て
  • 28坪
  • 四人家族

DKとリビングの一体感で、家族のつながりを自然に

作業スペースを備えたリビングと、
程よい距離で分けられつつも一体感を保ったDKの間取り、
そしてスムーズな動線を考慮した集中型の水回りスペースを配置しています。

プランデータ

1F床面積
46.37㎡
2F床面積
46.37㎡
延床面積 
46.37㎡
建築面積 
92.74㎡

プラン

WEBから資料請求で 間取りプラン集を無料プレゼント

Robinハウスが展開する16ブランドの間取りプラン集を希望者にプレゼントしています。大容量96プランの図面集です。

  • 2階建て
  • 28坪
  • 四人家族

動線の工夫が、毎日の暮らしをもっと快適に

作業スペースを備えたリビングと、
程よい距離で分けられつつも一体感を保ったDKの間取り、
そしてスムーズな動線を考慮した集中型の水回りスペースを配置しています。

プランデータ

1F床面積
46.37㎡
2F床面積
46.37㎡
延床面積 
46.37㎡
建築面積 
92.74㎡

プラン

WEBから資料請求で 間取りプラン集を無料プレゼント

Robinハウスが展開する16ブランドの間取りプラン集を希望者にプレゼントしています。大容量96プランの図面集です。

  • 2階建て
  • 28坪
  • 四人家族

LDKと水回りをゾーン分けし、家族の暮らしをスマートに

階段を含むFCL設計の水回りとLDKを明確にゾーン分けし、
熱効率も考慮した効率的な間取りを実現しています。

プランデータ

1F床面積
46.37㎡
2F床面積
46.37㎡
延床面積 
46.37㎡
建築面積 
92.74㎡

プラン

WEBから資料請求で 間取りプラン集を無料プレゼント

Robinハウスが展開する16ブランドの間取りプラン集を希望者にプレゼントしています。大容量96プランの図面集です。

  • 2階建て
  • 28坪
  • 四人家族

家事も移動もスムーズ、効率的で快適な間取り

階段を含むFCL設計の水回りとLDKを明確にゾーン分けし、
熱効率も考慮した効率的な間取りを実現しています。

プランデータ

1F床面積
46.37㎡
2F床面積
46.37㎡
延床面積 
46.37㎡
建築面積 
92.74㎡

プラン

WEBから資料請求で 間取りプラン集を無料プレゼント

Robinハウスが展開する16ブランドの間取りプラン集を希望者にプレゼントしています。大容量96プランの図面集です。

  • 2階建て
  • 28坪
  • 四人家族

効率的な間取りが、家族の毎日を快適にする

階段を含むFCL設計の水回りとLDKを明確にゾーン分けし、
熱効率も考慮した効率的な間取りを実現しています。

プランデータ

1F床面積
46.37㎡
2F床面積
46.37㎡
延床面積 
46.37㎡
建築面積 
92.74㎡

プラン

WEBから資料請求で 間取りプラン集を無料プレゼント

Robinハウスが展開する16ブランドの間取りプラン集を希望者にプレゼントしています。大容量96プランの図面集です。

  • 2階建て
  • 28坪
  • 四人家族

LDKも水回りも快適、効率と居心地を両立した住まい

階段を含むFCL設計の水回りとLDKを明確にゾーン分けし、
熱効率も考慮した効率的な間取りを実現しています。

プランデータ

1F床面積
46.37㎡
2F床面積
46.37㎡
延床面積 
46.37㎡
建築面積 
92.74㎡

プラン

WEBから資料請求で 間取りプラン集を無料プレゼント

Robinハウスが展開する16ブランドの間取りプラン集を希望者にプレゼントしています。大容量96プランの図面集です。

  • 2階建て
  • 28坪
  • 四人家族

壁面収納でLDをすっきり、暮らしやすさを実感

スタディーコーナーと壁面収納を備えたLD、
広々とした収納が魅力の主寝室、
さまざまな活動に対応するファミリースペースを設けた、
機能性と快適性を兼ね備えた間取りです。

プランデータ

1F床面積
46.37㎡
2F床面積
46.37㎡
延床面積 
46.37㎡
建築面積 
92.74㎡

プラン

WEBから資料請求で 間取りプラン集を無料プレゼント

Robinハウスが展開する16ブランドの間取りプラン集を希望者にプレゼントしています。大容量96プランの図面集です。

  • 2階建て
  • 28坪
  • 四人家族

収納充実で、毎日をスッキリ快適に

スタディーコーナーと壁面収納を備えたLD、
広々とした収納が魅力の主寝室、
さまざまな活動に対応するファミリースペースを設けた、
機能性と快適性を兼ね備えた間取りです。

プランデータ

1F床面積
46.37㎡
2F床面積
46.37㎡
延床面積 
46.37㎡
建築面積 
92.74㎡

プラン

WEBから資料請求で 間取りプラン集を無料プレゼント

Robinハウスが展開する16ブランドの間取りプラン集を希望者にプレゼントしています。大容量96プランの図面集です。

  • 2階建て
  • 28坪
  • 四人家族

スタディーコーナーと広々LDで、家族の暮らしを賢くサポート

スタディーコーナーと壁面収納を備えたLD、
広々とした収納が魅力の主寝室、
さまざまな活動に対応するファミリースペースを設けた、
機能性と快適性を兼ね備えた間取りです。

プランデータ

1F床面積
46.37㎡
2F床面積
46.37㎡
延床面積 
46.37㎡
建築面積 
92.74㎡

プラン

WEBから資料請求で 間取りプラン集を無料プレゼント

Robinハウスが展開する16ブランドの間取りプラン集を希望者にプレゼントしています。大容量96プランの図面集です。

  • 2階建て
  • 28坪
  • 四人家族

ファミリースペースと収納で、暮らしを自由に楽しむ家

スタディーコーナーと壁面収納を備えたLD、
広々とした収納が魅力の主寝室、
さまざまな活動に対応するファミリースペースを設けた、
機能性と快適性を兼ね備えた間取りです。

プランデータ

1F床面積
46.37㎡
2F床面積
46.37㎡
延床面積 
46.37㎡
建築面積 
92.74㎡

プラン

WEBから資料請求で 間取りプラン集を無料プレゼント

Robinハウスが展開する16ブランドの間取りプラン集を希望者にプレゼントしています。大容量96プランの図面集です。

  • 2階建て
  • 28坪
  • 四人家族

収納充実で、家族の暮らしをスッキリ快適に

スタディーコーナーと壁面収納があるLD、
広々な収納スペースを備えた主寝室、
そして様々な用途に適応するファミリースペースを含む、
機能的で快適な生活をサポートする間取りです。

プランデータ

1F床面積
46.37㎡
2F床面積
46.37㎡
延床面積 
46.37㎡
建築面積 
92.74㎡

プラン

WEBから資料請求で 間取りプラン集を無料プレゼント

Robinハウスが展開する16ブランドの間取りプラン集を希望者にプレゼントしています。大容量96プランの図面集です。

  • 2階建て
  • 28坪
  • 四人家族

広々主寝室の収納が、家族の毎日をサポート

スタディーコーナーと壁面収納があるLD、
広々な収納スペースを備えた主寝室、
そして様々な用途に適応するファミリースペースを含む、
機能的で快適な生活をサポートする間取りです。

プランデータ

1F床面積
46.37㎡
2F床面積
46.37㎡
延床面積 
46.37㎡
建築面積 
92.74㎡

プラン

WEBから資料請求で 間取りプラン集を無料プレゼント

Robinハウスが展開する16ブランドの間取りプラン集を希望者にプレゼントしています。大容量96プランの図面集です。

  • 2階建て
  • 28坪
  • 四人家族

壁面収納でLDをすっきり、暮らしやすさを最大化

スタディーコーナーと壁面収納があるLD、
広々な収納スペースを備えた主寝室、
そして様々な用途に適応するファミリースペースを含む、
機能的で快適な生活をサポートする間取りです。

プランデータ

1F床面積
46.37㎡
2F床面積
46.37㎡
延床面積 
46.37㎡
建築面積 
92.74㎡

プラン

WEBから資料請求で 間取りプラン集を無料プレゼント

Robinハウスが展開する16ブランドの間取りプラン集を希望者にプレゼントしています。大容量96プランの図面集です。

  • 2階建て
  • 28坪
  • 四人家族

広々主寝室と収納が、家族の安心と快適さを叶える

スタディーコーナーと壁面収納があるLD、
広々な収納スペースを備えた主寝室、
そして様々な用途に適応するファミリースペースを含む、
機能的で快適な生活をサポートする間取りです。

プランデータ

1F床面積
46.37㎡
2F床面積
46.37㎡
延床面積 
46.37㎡
建築面積 
92.74㎡

プラン

WEBから資料請求で 間取りプラン集を無料プレゼント

Robinハウスが展開する16ブランドの間取りプラン集を希望者にプレゼントしています。大容量96プランの図面集です。

  • 2階建て
  • 28坪
  • 四人家族

効率的な動線で、四人家族の暮らしを快適に

FCLと水回り、階段を一か所に集約することで、
家事の効率を大幅に向上させる間取りを実現しました。

プランデータ

1F床面積
46.37㎡
2F床面積
46.37㎡
延床面積 
46.37㎡
建築面積 
92.74㎡

プラン

WEBから資料請求で 間取りプラン集を無料プレゼント

Robinハウスが展開する16ブランドの間取りプラン集を希望者にプレゼントしています。大容量96プランの図面集です。

  • 2階建て
  • 28坪
  • 四人家族

階段も水回りも集約して、家族の暮らしを効率化

FCLと水回り、階段を一か所に集約することで、
家事の効率を大幅に向上させる間取りを実現しました。

プランデータ

1F床面積
46.37㎡
2F床面積
46.37㎡
延床面積 
46.37㎡
建築面積 
92.74㎡

プラン

WEBから資料請求で 間取りプラン集を無料プレゼント

Robinハウスが展開する16ブランドの間取りプラン集を希望者にプレゼントしています。大容量96プランの図面集です。

  • 2階建て
  • 28坪
  • 四人家族

効率的な動線が、暮らしの快適さを引き上げる

FCLと水回り、階段を一か所に集約することで、
家事の効率を大幅に向上させる間取りを実現しました。

プランデータ

1F床面積
46.37㎡
2F床面積
46.37㎡
延床面積 
46.37㎡
建築面積 
92.74㎡

プラン

WEBから資料請求で 間取りプラン集を無料プレゼント

Robinハウスが展開する16ブランドの間取りプラン集を希望者にプレゼントしています。大容量96プランの図面集です。

  • 2階建て
  • 28坪
  • 四人家族

水回りと階段を集約し、家事がラクに進む住まい

FCLと水回り、階段を一か所に集約することで、
家事の効率を大幅に向上させる間取りを実現しました。

プランデータ

1F床面積
46.37㎡
2F床面積
46.37㎡
延床面積 
46.37㎡
建築面積 
92.74㎡

プラン

WEBから資料請求で 間取りプラン集を無料プレゼント

Robinハウスが展開する16ブランドの間取りプラン集を希望者にプレゼントしています。大容量96プランの図面集です。

  • 2階建て
  • 28坪
  • 四人家族

豊富な収納が、家族の毎日を快適に整える

壁面収納を活用して廊下を省略した、広々としたLDKと各居室にクロークを備えた、
豊富な収納スペースを持つ間取りです。

プランデータ

1F床面積
46.37㎡
2F床面積
46.37㎡
延床面積 
46.37㎡
建築面積 
92.74㎡

プラン

WEBから資料請求で 間取りプラン集を無料プレゼント

Robinハウスが展開する16ブランドの間取りプラン集を希望者にプレゼントしています。大容量96プランの図面集です。

  • 2階建て
  • 28坪
  • 四人家族

壁面収納で家事動線もすっきり、快適な暮らしを実現

壁面収納を活用して廊下を省略した、広々としたLDKと各居室にクロークを備えた、
豊富な収納スペースを持つ間取りです。

プランデータ

1F床面積
46.37㎡
2F床面積
46.37㎡
延床面積 
46.37㎡
建築面積 
92.74㎡

プラン

WEBから資料請求で 間取りプラン集を無料プレゼント

Robinハウスが展開する16ブランドの間取りプラン集を希望者にプレゼントしています。大容量96プランの図面集です。

  • 2階建て
  • 28坪
  • 四人家族

壁面収納を活かした、整理整頓しやすい間取り

壁面収納を活用して廊下を省略した、広々としたLDKと各居室にクロークを備えた、
豊富な収納スペースを持つ間取りです。

プランデータ

1F床面積
46.37㎡
2F床面積
46.37㎡
延床面積 
46.37㎡
建築面積 
92.74㎡

プラン

WEBから資料請求で 間取りプラン集を無料プレゼント

Robinハウスが展開する16ブランドの間取りプラン集を希望者にプレゼントしています。大容量96プランの図面集です。

  • 2階建て
  • 28坪
  • 四人家族

豊富な収納で、家族みんなが心地よく過ごせる家

壁面収納を活用して廊下を省略した、広々としたLDKと各居室にクロークを備えた、
豊富な収納スペースを持つ間取りです。

プランデータ

1F床面積
46.37㎡
2F床面積
46.37㎡
延床面積 
46.37㎡
建築面積 
92.74㎡

プラン

WEBから資料請求で 間取りプラン集を無料プレゼント

Robinハウスが展開する16ブランドの間取りプラン集を希望者にプレゼントしています。大容量96プランの図面集です。

CONTACT

資料請求フォーム

人気の間取り集プレゼント!!

理想のライフスタイルを叶えられるプランがきっと見るかる一冊です!
プラン集をご希望の方は下記フォームよりご連絡ください。

資料請求フォーム

    お名前

    フリガナ

    電話番号

    メールアドレス

    ご住所

    お問合せ内容

    プライバシーポリシーに同意する

    同意する
    間取り集プレゼント モデルハウス・内覧予約